Как собрать своими руками по чертежам

«Рыбак 2-МР» имеет довольно простую конструкцию, поэтому при желании человек может собрать его самостоятельно. За основу можно взять готовый чертеж рамы:

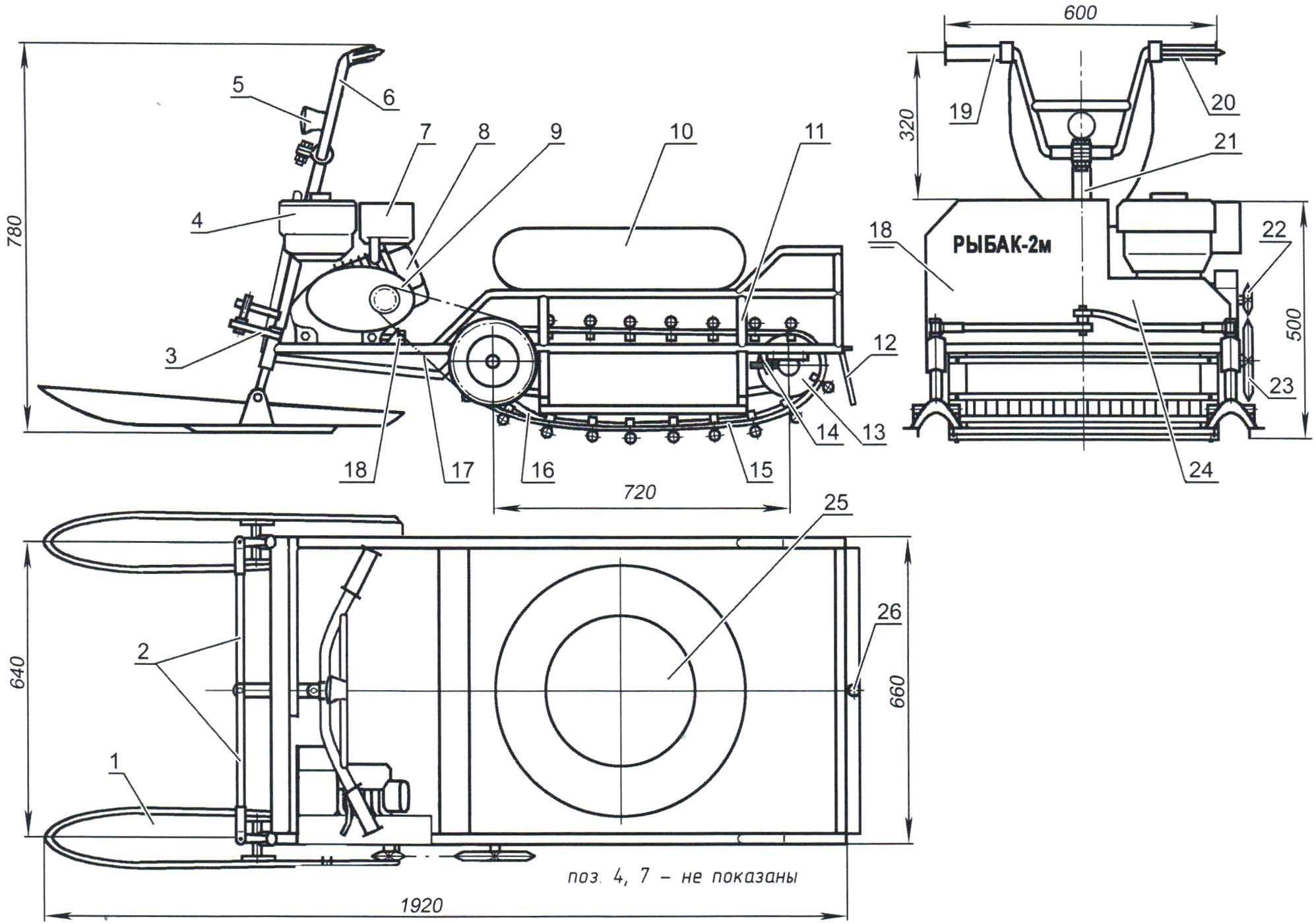
Здесь цифрами обозначены:
- лонжероны;
- траверса передняя;
- главная поперечина;
- траверса задняя;
- дуга сиденья;
- дуга ограждения;
- стойка для опорной дуги;
- стойка задняя;
- поперечина площадки;
- поперечина заднего ограждения;
- подрамник для опорной лыжи;
- половой подрамник;
- защитный гусеничный траверс.
Для каркаса используются стальные трубы:
| Пункт | Размеры | Количество (шт) |
| 1, 2, 4 | d25x1.2 | 2 |
| 3 | 1 | |
| 5, 8 | d20x1.5 | 2 |
| 7 | 4 | |
| 6 | d16x1,5 | 2 |
| 9 | 4 | |
| 10, 12 | 1 | |
| 11 | 20x20x1,5 | 1 |
Для защиты гусеничного траверса используется уголок 3 на 3 см.
Рулевой вал
Узел рулевого вала состоит из рулевого вала (1) с тяговой осью (6), наконечника (2) со втулкой (3) и упорным подшипником скольжения (4). Тяговая ось (6) соединяется с рулевым валом (1) при помощи металлической сошки (5). Также к валу при помощи хомута (7) крепится подшипник скольжения (8) со втулкой (9), с другой стороны находится рамка переднего щитка (11). С противоположных концов вала располагаются хомут (10) для закрепления руля и траверса рамы (12), предназначенный для установки собственно на мотоснегокат.
Поворотный кулак и узел приводного вала

Поворотный кулак имеет более сложную структуру. Здесь на стойку (1) крепятся нижний упорный подшипник (3) с опорной шайбой (2), далее идет втулка кулака (5) с пяткой (4) и сошкой (6). Сошка состоит из малой втулки (7) и подшипника скольжения (8). В свою очередь она помещается большую втулку (9) с верхним упорным подшипником (12) и шпонкой (13). Кулачная сошка (6) закрепляется в стойке (1) с помощью гайки (10) с шайбой (11). Ниже также расположен еще один подшипник скольжения (14), который располагается непосредственно над переднем концом лонжерона рамы (15).

Узел приводного вала (1) представляет стальную трубу, на которую с одной стороны крепится приводное зубчатое колесо гусеницы (3), а с другой − ведущая звездочка цепной передачи (11). С обоих сторон зубчатое колесо (3) надежно закреплено при помощи внутреннего (2) и наружного (4) фланцев. На небольшом расстоянии от звездочки крепится лонжерон рамы (10) с подшипником (5). На лонжероне находится основной подшипник (6) со стальной крышкой (7), закрепленный с обоих сторон специальным корпусом (8) и четырьмя болтами М6 (9).
Звездочка цепной передачи (11) со шпонкой (12) с одной стороны крепится гайкой (13) с шайбой (14), а с другой надевается на левый наконечник приводного вала (15).
Снегоход Рыбак 2МР своими руками: чертежи, сборка и фото
На видео показана сборка миниснегохода Рыбак 2МР своими руками.
Как только в нашей стране начинается зима, учитывая климат, двухколесный транспорт убирается в гараж до весны. Бывает невозможно использовать автомобиль для передвижения из-за обильного снега. И тут на помощь всем автолюбителям, которые хотят передвигаться по заснеженной дороге, приходит снегоход на гусеницах, который можно сделать из мотоблока своими руками.
Возможность купить себе дополнительное транспортное средство есть не у всех, но каждый может самостоятельно сконструировать самодельный гусеничный снегоход из мотоблока.
Особенности торговой марки:
Купить снегоход рыбак — хорошее решение, если Вам нужен надежный и проходимый транспорт, который можно перевозить на крыше или в багажнике любого автомобиля. Данная серия идеально подойдет для рыбаков, охотников и лесников. Болид демонстрирует неплохую проходимость даже по рыхлому снегу. Устройство относится к классу мототрансформеров, т.е. его можно разобрать на три основные части, а после транспортировки собрать.
5 причин купить снегоход рыбак:
• Производительный и износоустойчивый двигатель мощностью 6.5 л.с.; • Крайне высокая мобильность и облегченная транспортировка; • Превосходный уровень грузоподъемности; • Лучшая проходимость в своем классе; • Широкие возможности по комплектации.
Лучшие предложения:
Мини-снегоход Рыбак-2МР (лучшая цена) — модель с превосходными эксплуатационными характеристиками и высокой мобильностью. В разобранном состоянии агрегат поместиться в багажнике любого автомобиля. Данную модель можно использовать в качестве мотобуксировщика, максимально допустимый объем груза не должен превышать 250 кг. Устройство оборудовано пластиковым лыжным модулем, съемным рулем, багажником и фарами.
Постройка рамы
Прежде чем приступить к строительству снегохода, вначале потребуется выбрать материал. Проще всего самодельную раму сделать из деревянных брусков. Получится очень лёгкая и довольно прочная конструкция, которая считается самой дешёвой и наиболее простой в изготовлении. Для этого понадобятся:
- Деревянные бруски.
- Листовое железо.
- Ножницы по металлу.
- Дрель и свёрла.
- Ручная пила.
- Болты и гайки.
Преимущества строительства такой конструкции бесспорны. В случае поломки деревянную модель будет нетрудно отремонтировать вдали от населённого пункта. В лесу легко найти подручный материал, который можно применить для ремонта. Но главным достоинством считается то, что этот снегоход редко проваливается под лёд и не тонет в воде.
Деревянная конструкция
Известно, что бруски и доски из древесины не обладают особой прочностью в местах их
соединения. Поэтому перед началом строительства необходимо сделать дополнительные уголки из металла. Для этого берут листовое железо и вырезают ножницами квадратные пластины по ширине брусков. В них рулеткой размечают места под болты, а затем дрелью сверлят четыре отверстия. После этого пластины сгибают пополам строго под 90 градусов. Это будут отличные приспособления для прочного скрепления деревянных брусков в углах самодельной рамы.
Обычно приступают к строительству после того, как сделают чертёж с точными размерами. И уже по ним ножовкой отрезают четыре бруска, а в углах дрелью сверлят отверстия для болтов. Затем их кладут на ровную поверхность пола в виде правильного прямоугольника. К местам соединения прикладывают металлические уголки, вставляют болты и накрепко затягивают гайками.
Для крепления двигателя и гусеницы на раму устанавливают дополнительно ещё две перекладины из брусков с отверстиями под болты на концах. Но перед этим вначале изготавливают уголки для крепления. Их вырезают из листов железа треугольной формы и сверлят отверстия в углах.
Когда они будут готовы, внутрь рамы вставляют перекладины и наверх кладут треугольники. В них точно по размерам дрелью сверлят отверстия сквозь бруски. Затем туда вставляют длинные болты и плотно стягивают гайками. На этом прочная деревянная рама будет готова, которая долгое время прослужит на самодельном устройстве.
Металлическая рама для снегохода
Гораздо труднее заниматься строительством самоделок из металла. Здесь нужны специальные инструменты и приспособления, которые могут быть не у каждого. Потребуются значительные затраты, чтобы их приобрести или взять в аренду. Однако эта постройка будет намного прочней и долговечней конструкции из дерева. Здесь потребуются:
- Сварочный аппарат.
- Электроды.
- Маска.
- Болгарка.
- Гаечные ключи.
- Пассатижи.
- Молоток.
Кроме того, для постройки металлической рамы понадобятся более прочные материалы. Их обязательно придётся покупать в магазине, так как сегодня они больше нигде не встречаются. Да и строить новый самодельный снегоход из старых деталей не слишком хочется из-за плохой надёжности. Поэтому здесь будут использоваться только хорошие материалы:
- Металлические трубы.
- Железный уголок.
- Листовая сталь.
- Швеллер.
После этого от металлической трубы потребуется просто отрезать две небольшие втулки.
Подвесное оборудование
Чтобы сделать снегоход быстрым и сильным необходимо на раму поставить хороший двигатель. Если установить маломощный мотор, то такая конструкция будет плохо передвигаться. А также нужно правильно рассчитать гусеницу. При слишком маленькой площади она утонет в большом снегу и не станет тянуть даже по ровной местности
Особое внимание нужно обратить на лыжи, которые должны создать хорошую устойчивость и безопасность при движении на высокой скорости

Резиновая гусеница своими руками

- Транспортёрная лента.
- Пластиковая труба.
- Болты, шайбы и гайки.
Дешёвую самодельную гусеницу для снегохода обычно делают с применением тонкой транспортёрной ленты. Для этого по ширине катков отпиливают заготовки из пластиковой трубы. Затем их разрезают по длине на две равные части и сверлят отверстия под небольшие болты. После этого половинки пластиковых труб закрепляют на транспортёрной ленте болтами с шайбами и гайками. Гусеница готова и нужно приступать дальнейшей постройке.
Самодельные лыжи

Чтобы лыжи свободно поворачивались, к ним приваривают металлические стойки из труб. В рабочем состоянии они держатся в передних втулках рамы, где легко вращаются.
Сам руль нетрудно сделать своими руками либо проще снять его со старого мотоцикла. Таким образом, останется только установить мотор, а также сиденье для водителя и можно двигаться в путь.
Рыбак 2МР – разборный двухместный миниснегоход типа мототрансформер, предназначен для передвижения по рыхлому и глубокому снегу. Техника комплектуется четырехтактным ДВС, автоматическим сцеплением, багажником, передним отбойником-уплотнителем и усиленным прицепным устройством, что позволяет использовать снегоход, как мотособаку (мотобуксировщик) в условиях сложной проходимости. Отзывы владельцев мини снегохода характеризуют Рыбак 2 МР, как снегомобиль для любителей зимней рыбалки и охоты из-за небольшого давления на снег и экономичности.
Технические характеристики:
Модификация снегохода | “Рыбак 2М” | “Рыбак 2МР” |
Габариты снегохода: – в собранном состоянии (Д х Ш х В), мм – в транспортном положении (Д х Ш х В), мм гусеничный отсек (Д х Ш х В), мм моторный отсек (Д х Ш х В), мм | 1915 х 675 х 838 1390 х 675 х 570 — — | 1965 х 675 х 840 — 1030 х 675 х 400 480 х 675 х 520 |
Масса, кг | 75 | 79 |
Полезная нагрузка, max кг | 120 | |
Скорость, max км/ч | 22 | |
Выбег со скорости 20 км/ч, м | 4 | |
Ходовая часть: – лыжи (шт) – гусеница шириной 580мм | 2 1 | |
Двигатель: – мощность двигателя, кВт (л.с.) – рабочий объем, см³ – максимальный расход топлива, л/час – объем бензобака, л – бензин – объем масла в картере, л – объем масла в редукторе, л | 4,4 (6,0) 196 1,65 3,6 Аи-92 0,6 0,5 |
Мотобуксировщик «Рыбак» обладает динамичным дизайном и производится в двух базах (короткая и удлиненная). Далее мотособака комплектуется под требования покупателя различными полезными опциями:
- Универсальная усиленная рама со съемным багажником
- 3 вида подвески,
- амортизация двигателя,
- вариатор,
- откидной стальной капот,
- защита цепи,
- регулировка наклона светодиодной фары,
- тяговое усилие 350-750кг,
Наш мотобуксировщик отличается простотой в эксплуатации и ремонте, доступными запчастями и гарантией до 2-ух лет. Мотобуксировщик «Рыбак» надежная и бюджетная альтернатива дорогим и массивным снегоходам, находка для любителей охоты, рыбалки, незаменим в хозяйстве, например, для перевозки дров, а так же идеально подходит для семейного отдыха или отдыха большой компанией. Использование мотобуксировщика «Рыбак» возможно как зимой, так и летом! «Рыбак» с легкостью преодолевает любые препятствия, без труда передвигается по трудно проходимой местности и в любую погоду. Он не боится глубокого снега, снежных переметов, сугробов или топей. Вес «Рыбака» позволяет без особых проблем передвигать его вручную, благодаря чему использование становится еще более удобным.Благодаря своим габаритам и весу мотобуксировщик «Рыбак» легок в транспортировке, он без проблем поместится в прицеп, а так же его можно перевозить на заднем сиденье некоторых автомобилей, откинув задние кресла.Для управления мотобуксировщиком не требуются водительское удостоверение и регистрация в Гостехнадзоре, им может управлять даже подросток.В «Рыбаке» устранены недочеты других мотобуксировщиков, такие как: самопроизвольное движение после остановки, проблемы с натяжением гусеницы, быстрое перегорание фары и многие другие.















































